こんにちは!知多半島東海市を中心に家づくりを手がける栄和興産です(^^)
前回、前々回とご紹介した名古屋市熱田区の分譲住宅A棟は現在絶賛販売中です!!
弊社の建売分譲住宅のキャッチフレーズは「ふつうの建売じゃイヤだ」。
そして、それぞれの物件が、設計士による明確なコンセプトに基づき設計されています。
A棟はクリエイティブに毎日楽しんで過ごしていただきたい。
そんな想いで考え抜いて設計した建売分譲住宅。
家族のつながりが感じられて孤立しない。でもそれぞれのプライバシーは確保できる。
そんな家に仕上がっています。

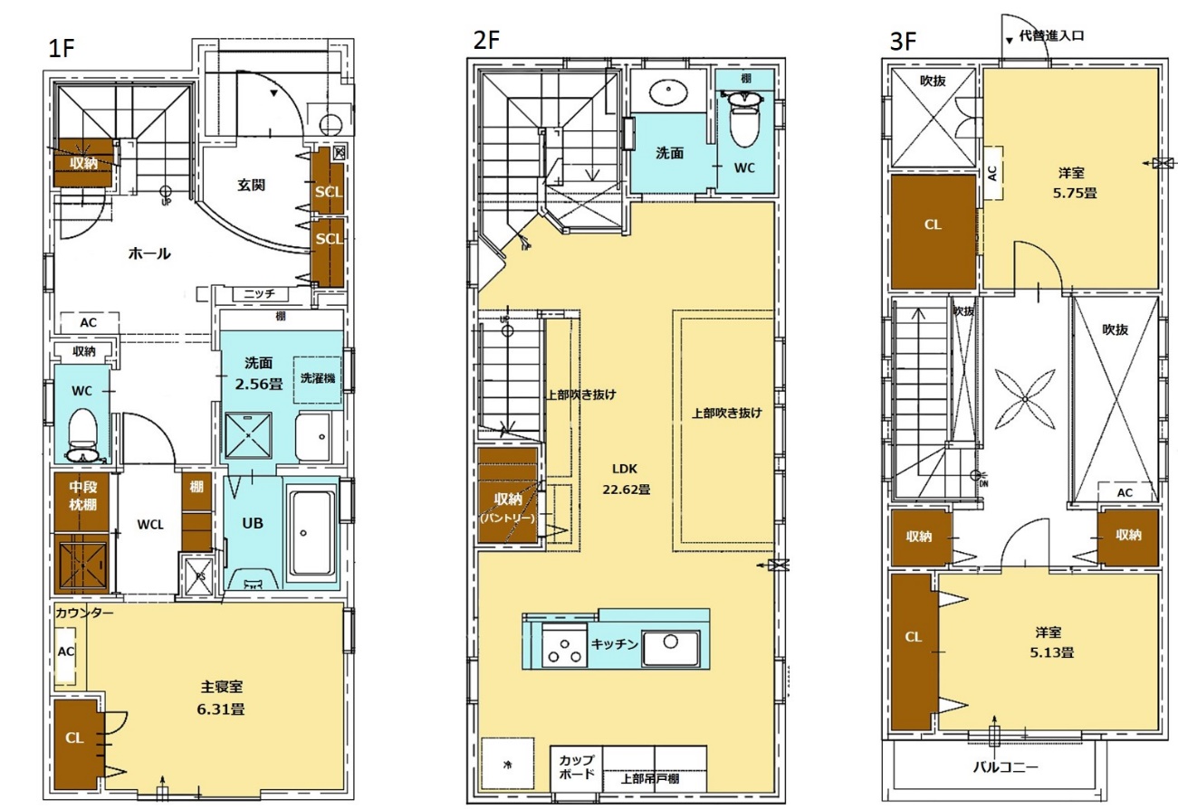
場所は名古屋市熱田区千代田町。地下鉄名港線『日比野駅』から徒歩7分という便利な立地。
金山や名駅、栄エリアへの通勤や通学もラクラクです♪でも、住宅地のなかにあるので、
とっても静か(・o・)非常に暮らしやすい環境です。
外観はレンガ調でトラディッショナルな雰囲気。個性が感じられ、毎日家に帰るのが
楽しくなること間違いなし。
3階建てなので、LDKや主寝室、居室など一つひとつ広い空間を確保。中に入ると、
想像以上の開放感にびっくりされることでしょう。

1階と2階、そして2階と3階は吹き抜けでつながっているので、家族の気配が感じられます。
リビングからお互いに声をかけあえる。自然とコミュニケーションが深まる構造になっています。

前回、前々回ご紹介したとおり、高圧メラミン化粧板のキッチンやほっカラリ床、レバーを
押しても引いても捻っても開けられるドアなど、ヒミツがいっぱい!
毎日がより便利に、より楽しくなります♪

見学会は随時開催中!分譲住宅なので売り切れ御免!早いもの勝ちです!!
今ならなんとテレビボードやテーブル、ソファなどの家具もおつけします。
どれも弊社の社長が調達した高級品ですよ!!(・o・)
名古屋に引っ越されて都心に通勤されているファミリーの方におすすめ!!
ぜひ興味がありましたら見学にお越しくださいね(^_-)-☆






