| 住所 | 東海市加木屋町倉池147番地 | 交通 | 名鉄河和線「南加木屋」駅 徒歩12分 |
|---|---|---|---|
| 面積 | 公簿667.76㎡(201.99坪) | 価格 | 6,000万円 |
| 更新日 | 2025/11 | 確認番号 | 引渡 | 相談 | 取引形態 | 専任 |
|---|
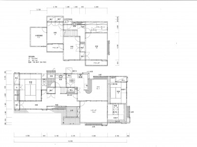
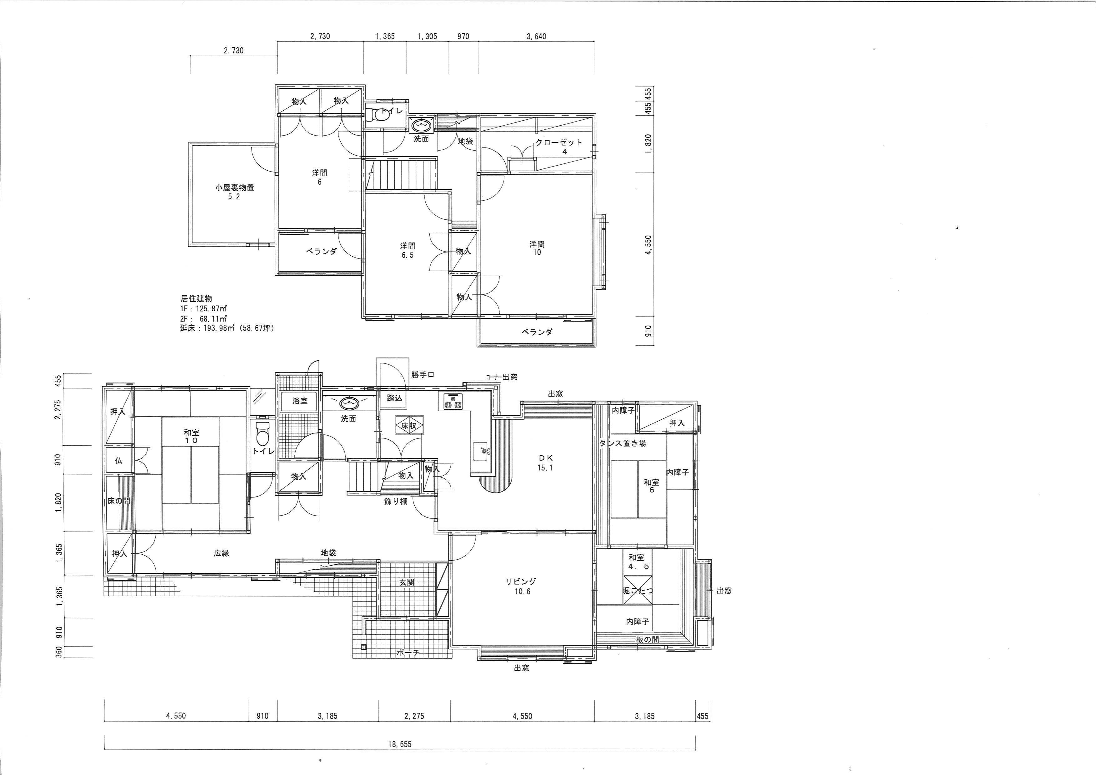
| 建物 | 間取り | 6LDK+2S | 構造 | 下記参照 | ||
|---|---|---|---|---|---|---|
| 構造 |
居宅:木造かわら葺2F建て 事務所・倉庫:鉄骨造亜鉛メッキ鋼板ぶき2F建 |
|||||
| 築年月 | 居宅:1990年10月、事務所・倉庫:1994年2月 | |||||
| 土地 | 権利 | 所有権 | 地目 | 宅地 | 都市計画 | 市街化調整区域 |
| 建ぺい率 | 60% | 容積率 | 200% | 地勢 | ひな壇 | |
| 土地面積 | 公簿 667.76㎡(201.99坪) | |||||
| 設備 | 電気 | 有 | ガス | 都市ガス | 水道 | 上水 |
| 浄化槽 | 2つ | 側溝 | 有 | |||








